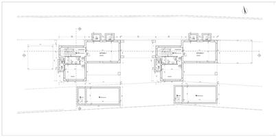
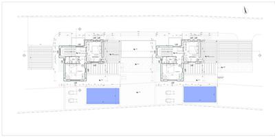
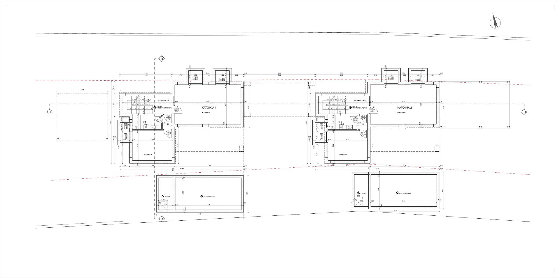
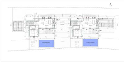
This plot of 1,784,94m2 includes a building permission for two independent villas, each of 137,94m2, each with a private swimming pool of 29,25m2, and each with a private basement of 73,66m2!
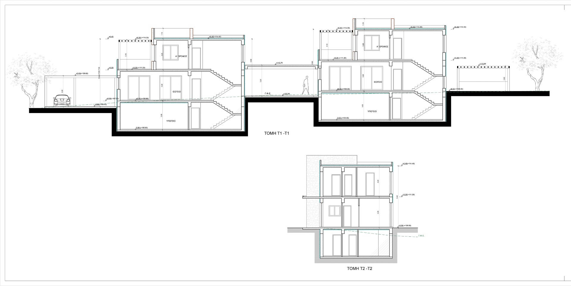
The villas are designed on two levels and are attached by a covered area. The ground floors consist of a spacious open plan kitchen / living room, a bathroom with a wall-to-wall shower and a double bedroom with sliding patio doors opening onto the sun terraces surrounding the swimming pool. Internal staircases lead to the lower floor which will be the basement, and the upper floors which will consist of a landing hall, a shared bathroom with wall-to-wall shower, and two double bedrooms, one of which has patio doors opening onto a spacious balcony! 384m2 of the plot will be used as a common access for the villas and each villa with have exclusive use of 700m2 of land.
Most probably from the second floor of the villas, there will also be some sea views along with the mountain views.
All documentation is in place and the future owner of the land could start the construction process immediately!
Access is provided easily by the main asphalt road, while water and electricity and found on site.
The land is long and narrow and has a very slight slope towards the east and then another very slight slope towards the west, providing tranquil rural views of the hills, villages and mountains and making the construction process easy.




